Cotswold Manor Hall with Hot-Tub
Oxford, OxfordshireSleeps 9 - 24 | 9 Bedrooms | Pet-Friendly | Reviews
Key Information
from 4800 to 13200 GBP per week 9 Bedroom cottage
7 Bathrooms
Garden
Parking
Pets welcome
Some Disabled Accessible Features
Hot Tub, Games Room
Accommodation Summary: cottage sleeps 24 The Cotswolds, Home Counties.
Availability
Book with the owner direct
cottage in village setting in The Cotswolds, Home Counties.
Key Holiday Home Information:
Disabled Accessibility Information: NOT Wheelchair Accessible
Location: village setting, rural setting, hillside setting, secluded holiday home.
Nearest Airport and Railway Station: Hanborough.
Nearest city or town: Oxford, Oxfordshire, approximately 9 miles away.
Type of holiday rental: Large group holiday with hot tub.
Short Breaks and weekend breaks: All year round
About this dogs welcome cottage for up to 24 guests in Oxfordshire
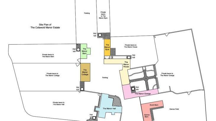
Elegant 9-Bedroom Cotswold Manor Hall with Private Hot Tub & Games Room Near Oxford
Just 20 minutes from Oxford and an hour from London, Cotswold Manor Hall offers a luxurious countryside escape. Set within 70 acres of scenic parkland, this Grade II listed retreat blends historic charm with modern comfort. With 9 beautifully styled bedrooms, 6 bathrooms, and space for up to 24 guests, it’s perfect for family reunions, celebrations, corporate events, or stag and hen parties.
Relax in Style with Exclusive Spa & Outdoor Hot Tub
Unwind in the private spa and hot tub, or enjoy a cozy evening by the log-burning stove in the charming sitting room, complete with a 40” LCD HD TV and complimentary WiFi. The farmhouse kitchen is bright and airy, while the outdoor patio, BBQ area, and garden furniture provide the perfect setting for al fresco dining.
Entertainment & Activities
• Shared Games Barn – Pool table, table football, and more
• Witney Lakes Resort ‘Privilege Guest’ Access – Enjoy discounted rates on spa treatments, gym, sauna, steam room, heated pool, and golf course
• Expansive 70-acre estate – Ideal for scenic walks, picnics, and relaxation
Whether you're celebrating with loved ones, planning a corporate retreat, or enjoying a weekend escape, Cotswold Manor Hall offers the perfect balance of luxury, history, and entertainment in the heart of the Cotswolds.
Facts about this holiday accommodation in Oxford.
- Sitting Room with: TV, DVD player, Woodburner, Free Internet Access
- There is a dining table to seat 30 people.
- Kitchen with: Fridge/Freezer, Microwave, Dishwasher, Washing Machine, Coffee Maker
- 9 bedrooms. Sleeping arrangements: 24 single bed(s)
- 7 Bathrooms, Power Shower
- Garden: private garden
- Balcony
- Parking
- Central Heating
Layout of Bedrooms





























Entertainment and/or Leisure Facilities on Offer: Games Room , Hot Tub , Whirl Pool or spa , Jacuzzi
Flexible changeover day: Yes
Recommended Attractions near Oxford: Cogges Manor Farm, Minster Lovell Hall and Dovecote, Cotswold Wildlife Park and Gardens, Hungerford Wharf, Kelmscott Manor, Fairytale Farm, Blenheim Palace, Moneypenny's Lock and Towpath, Crocodiles of the World, Thames Path, Cotswolds National Landscape , Roves Farm, Copper Kingdom Centre, Blue Lagoon Water Park, Oxford Castle and Prison.
More about the Location:Pub Nearby, just a short walk away., Golf Course nearby, Good area for Walking, Outdoor Pursuits available nearby: horse riding, sailing, surfing, wind surfing, golfing.
Short Breaks: Yes, minimum 2 nights
Booking Information
Book safely and securely! This owner/agency offers secure online booking. See the Book Now button to book and for further details.
We recommend wherever possible that you book online via secure online booking.
Property location
Reviews for Cotswold Manor Hall with Hot-Tub
No reviewsHave you stayed at this cottage? Please add a review
